Richards of Hull

Instructions for Fixing a Cassette Blind with Side Guides

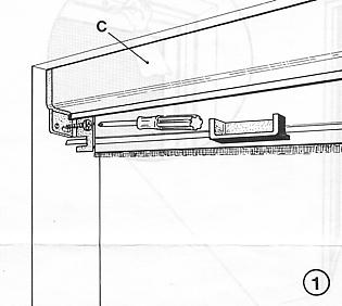
1 - Fix the box "C" with screws

2 - Insert the side guides "U" into the head unit's
groove then fix it to the window side frame

3 - Insert the guides into the "U" guides after having
placed the small footing in the correct position

4 - When both guides "U" have been positioned,
pull down the fabric to its full extent, position
the chain connector as a stop point near the box "C"

5 - Fix the chain connector at about 10cm
fix top box
fix side channels fix fabric guides
fix chain   chain locator
related pages ....

Decora Cassette Blinds

Measuring for a Blind

Not only black but also available in Sunscreen, Insect Screening and a choice of fabric colours


Richards of Hull

tel +44 (0) 1482 44 24 22 .... fax +44 (0) 1482 44 23 62

Unit 1, Acorn Estate, Bontoft Avenue, Hull HU5 4HF, England

Contact email to sales@richards.uk.com
Return to the Front Page

Copyright (C) Norman C. Richards, October, 2003